Produktions - Lagerhalle mit Büroeinheit in guter Lage
ID-N9211
Produktions - Lagerhalle mit Büroeinheit in guter Lage
90411 Nürnberg
5.400 €
Kaltmiete
8
Zimmer
540 m²
Grundstücksfläche
516 m²
Gesamtfläche
Objektbeschreibung
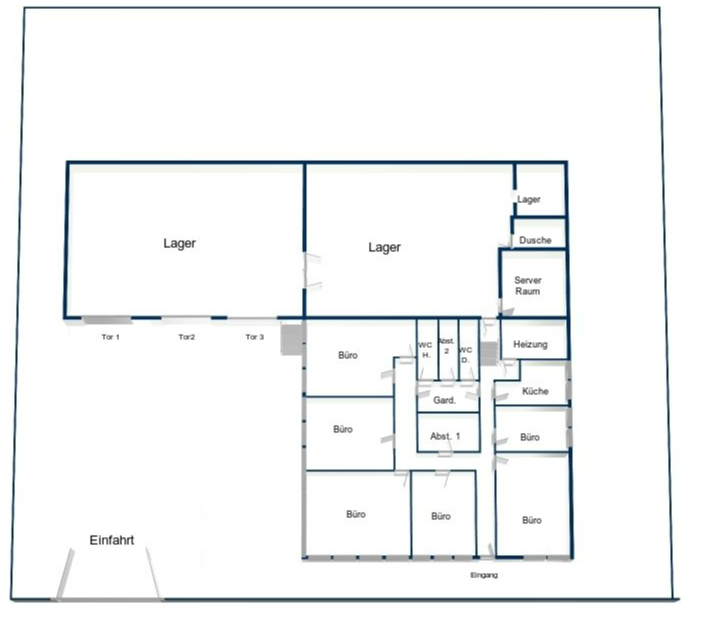
Die Halle wurde 1978 in Massivbauweise erbaut und ist in 2 Einheiten eingeteilt, die reine Lagerfläche beträgt ca. 300 qm, die Büroeinheit mit Teeküche, WCs, Dusche und Serverraum hat insgesamt 9 Räume mit einer Fläche von ca. 216 qm.
Die Büroräume sind komplett eingerichtet, alle Einrichtungsgegenstände können ohne Ablöse übernommen werden, alle Räume sind mit Einbauleuchten ausgestattet.
Die Teeküche ist komplett ausgestattet und kann so übernommen werden. Des weiteren gibt es eine Dusche, sowie Herren - und Damen WC.
Praktisch ist eine komplette Wand in einem der Büroräume, die als Magnetwand ausgearbeitet ist.
Vom Bürobereich gibt es einen direkten Zugang in die Halle.
Die Halle ist mit 3 Rolltoren ausgestattet, die Raumhöhe beträgt ca. 5 m.
Die Mietpreise verstehen sich zzgl. 19 % MwSt.
Lagebeschreibung
Die Lagerhalle befindet sich in einem Gewerbegebiet Nürnberg Nord, zum Autobahnanschluss - sowie zum Flughafen sind es nur wenige Fahrminuten.
Ausstattung
Ölheizung, Betonboden, Teppichboden, Magnetwand, eingebaute Beleuchtung, Serverraum, Teeküche, Büroausstattung. WCs`, Dusche, 3 Rolltore, Außenstellplätze, Büroräume, Hallenfläche, gute Zufahrt
- Stellplatztyp: Außenstellplatz
- Bodenbelag: Beton, Teppichboden
- Gäste-WC
- Einbauküche
- Abstellraum
Provision
siehe Sonstiges
Sonstiges
Bei Interesse kann ein Grundstücksanteil ( 1.100 qm ) hinter der Halle mit separater Zufahrt mit angemietet werden, aktuell ist dieser Bereich als Camper-Stellplätze vermietet. Der monatl. Mietpreis für diesen Bereich beträgt1.794.-€ + 19% MwSt. Die Mietverträge für die Stellplätze könnten übernommen werden, alternativ werden diese Stellplätze gekündigt.
Ich möchte mehr Infos:
Gerne hilft Ihnen Dieter Fritz weiter.
Dieter Fritz
09112361216
dieter.fritz@sollmann.de
Immobilien Sollmann + Zagel GmbH








